
0731-85228888 / 13297400000
本装置主要适用于以下场所的火灾:
1) 档案馆、图书馆书库、档案资料库、博物馆、文物库和古建筑等场所的可燃固体表面火灾;
2) 液压站、油浸电力变压器室、润滑油站和仓库、透平油仓库、涡轮机房、柴油发电机房、燃油锅炉房、喷漆烤漆生产线、燃油锅炉房、燃油直燃机房、白酒酒精仓库、油开关柜室等场所的可燃液体火灾;
3) 变配电室、发电机房、计算机房、数据中心机房、通讯机房、中央控制室、大型电缆室、电缆隧(廊)道、电缆夹层、电缆竖井等场所的电气设备火灾;
4) 引擎测试间、烟草库房、地铁站厅、隧道、机场候机楼、医院停车场、地下空间及大空间库房等场所;
5) 某些化工设施的降温以及环保上的控温降尘等。
本装置不适用于扑救下列火灾:
1) 可燃固体的深位火灾;
2) 能与水发生剧烈反应或产生大量有害物质的活泼金属及其化合物的火灾;
3) 可燃气体火灾。
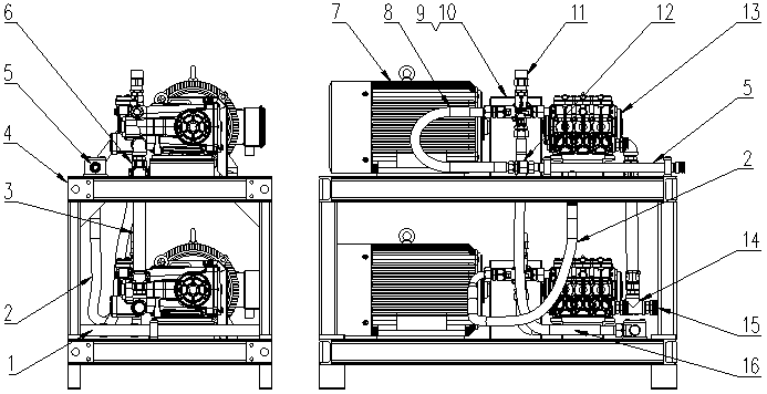
由中压泵、泄压调压阀、进水管路、中压出水管路、溢流管路等组成,用于提供灭火装置压力水源。如图所示。

| 1.溢流管 | 2.中压出水胶管 | 3.进水胶管 | 4.底盘 |
| 5.中压出水管路(与集流管连接) | 6.进水管扣压管件组 | 7.电机 | 8.中压出水胶管 |
| 9.防护罩 | 10.联轴器 | 11.泄压调压阀 | 12.中压出水单向阀 |
| 13.中压泵 | 14.进水管路三通 | 15.泵组进水扣压管件组(与中继水箱连接) | 16.溢流胶管 |
中压细水雾灭火装置主要技术参数见下表所示。
细水雾灭火装置应设置在专用的设备间内,设备间应采用耐火极限不低于2.00h的防火隔墙和1.50h的楼板与其他部位分隔,开向建筑内的门应采用甲级防火门,且应采取防水淹没的技术措施。

注1:示意图包含泵组、稳压泵、控制柜等部件的基础尺寸和设备重量(高压系统包括了中继水箱),如需设置独立的储水箱和补水泵,储水箱容积和补水泵应由相关专业计算确定。
注2:细水雾灭火装置设备间的门应能方便设备搬运,门的净宽度可参考所选型号的部件外形尺寸,或者预留吊装孔,吊装孔尺寸建议不小于控制柜及中继水箱的基础尺寸。
泵组数量 | 设备型号 | 设备重量 | 最大部件外形尺寸(长*宽*高) | 基础尺寸 | |
控制柜及中继水箱(L1*W1) | 泵组(L2*W2) | ||||
一用一备 | XSWBZ 200/3.5-PAVLN | 910kg | 0.9*0.5*2m | 1.3*0.89m | 1.8*1.85m |
二用一备 | XSWBZ 200/3.5-PAVLN | 1320kg | 0.9*0.5*2m | 1.3*0.89m | 1.8*2.65m |
三用一备 | XSWBZ 400/3.5-PAVLN | 1710kg | 0.9*0.5*2m | 1.3*0.89m | 1.8*2.65m |
四用一备 | XSWBZ 600/3.5-PAVLN | 2080kg | 0.9*0.5*2m | 1.3*0.89m | 1.8*3.45m |
五用一备 | XSWBZ 800/3.5-PAVLN | 2480kg | 0.9*0.5*2m | 1.3*0.89m | 1.8*3.45m |
六用一备 | XSWBZ 1000/3.5-PAVLN | 2850kg | 0.9*0.5*2m | 1.3*0.89m | 1.8*4.25m |
七用一备 | XSWBZ 1200/3.5-PAVLN | 3250kg | 0.9*0.5*2m | 1.3*0.89m | 1.8*4.25m |
八用一备 | XSWBZ 1400/3.5-PAVLN | 3620kg | 0.9*0.5*2m | 1.3*0.89m | 1.8*5.25m |
九用一备 | XSWBZ 1600/3.5-PAVLN | 4010kg | 0.9*0.5*2m | 1.3*0.89m | 1.8*5.25m |
Copyright © 2002-2024 立博买球 版权所有 备案号: 湘ICP备10202298号 湘公网安备 43012402000493号