

0731-85228888 / 13297400000
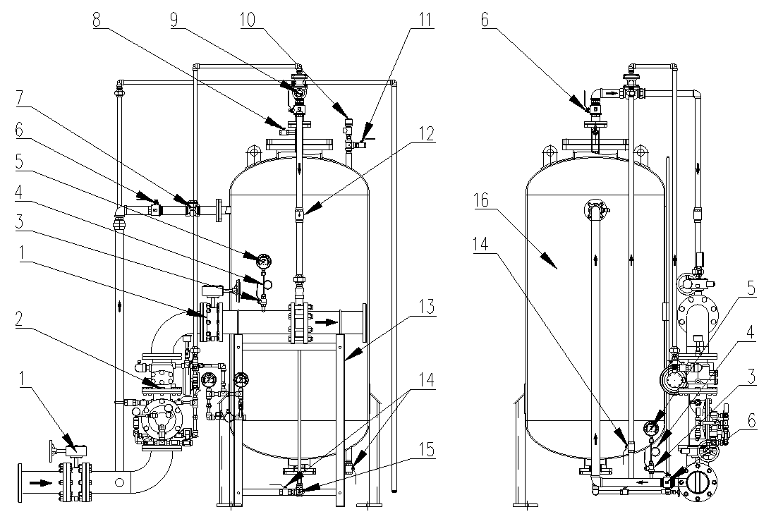
闭式泡沫—水喷淋装置主要由泡沫液储罐、泡沫比例混合装置、泡沫液控制阀、预作用装置、信号蝶阀及管道和配件等组成,属于自动喷水—泡沫联用灭火系统中的一种类型。它是在原有的湿式自动水喷淋基础上增加了泡沫供给装置,整个装置平时处于伺服状态,一旦被保护对象起火,该装置能迅速喷出泡沫将防护区覆盖,防止火灾蔓延,控制火势,然后利用消防水灭火,防止火灾复燃,是一种灭火效能高,应用范围广的固定式灭火设备。
主要适用于地下停车库、飞机维修库、室内停车场、化学危险品仓库,生产车间等室内易燃液体火灾或堆放易燃固体等区域。

| 1.信号蝶阀 | 2.预作用装置 | 3.压力表 | 4.表弯 |
| 5.三通旋塞阀 | 6.手动球阀 | 7.单向阀 | 8.手动球阀 |
| 9.泡沫液控制阀 | 10.安全阀 | 11.手动球阀 | 12.单向阀 |
| 13.泡沫罐支架 | 14.手动球阀 | 15.液位计 | 16.泡沫液储罐 |
型号规格 | ZPS64/8(3%)-PAVLN | ZPS64/12(3%)-PAVLN | ZPS100/15(3%)-PAVLN |
工作压力(MPa) | 0.6~1.6 | 0.6~1.6 | 0.6~1.6 |
流量范围(L/s) | 4~64 | 4~64 | 4~100 |
灭火剂类型 | AFFF | AFFF | AFFF |
灭火剂混合比 | 3% | 3% | 3% |
公称通径 | DN100 | DN100 | DN150 |
泡沫液储罐容积 | 0.8m³ | 1.2m³ | 1.5m³ |
Copyright © 2002-2024 立博买球 版权所有 备案号: 湘ICP备10202298号 湘公网安备 43012402000493号